Metro Denver Luxury Homes For Sale

Property Description

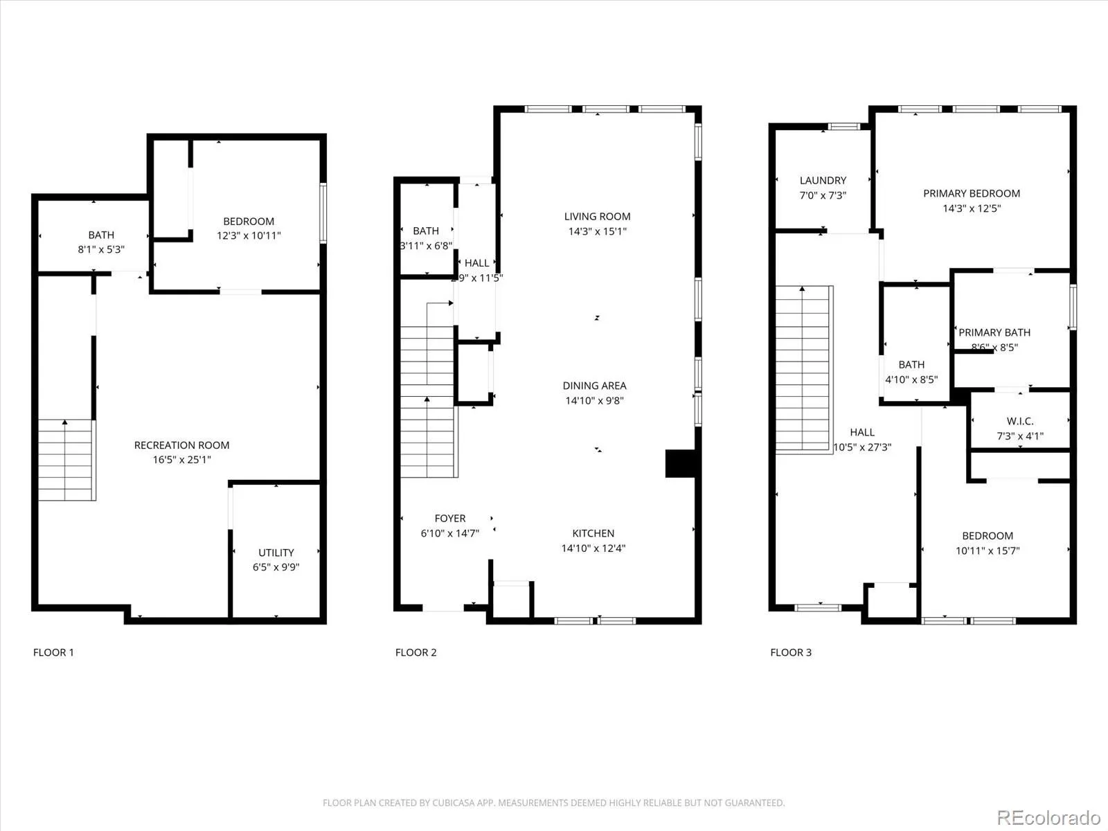
This home is thoughtfully designed for low-maintenance living. Inside you’re greeted by soaring 10-foot ceilings and an open-concept layout. Seamlessly connecting the kitchen, living room, and dining space. The kitchen features an extended kitchen island, upgraded quartz counter tops, designer marble backsplash, and stainless steel appliances. Warm wood floors throughout the
main level.

Mountain views of longs peak from the primary suite. On the upper level, natural light pours in through large windows in the primary bedroom. The primary suite features a 5 piece bathroom with soaking tub, and built in storage in the walk-in closet. Upper level laundry and a bonus / loft space. 2 Bedrooms on the upper level, and an additional bedroom in the basement.

Low maintenance turf yard and 2 car detached garage.

On the lower level, a fully finished basement with additional living space.

Moments away from Splash Landing pool, Beeler Park, and Pearl Market, right in the heart of Denvers Central Park. Primerose Preschool, Inspire Elementary, Denver Green Middle and Northfield High School, all within 5 mins.

Central Park is known for being a master planned community with a connective design. Miles upon miles
of trails for hiking/biking, and miles of open space. 7 pools in this neighborhood, and many thoughtfully designed pocket
parks. LVP installed on the upper level in 2025. New Roof installed 2024, Tankless water heater cleaned 2025. Windows
cleaned may of 2025, Marble backsplash installed after build.

Features
: Forced Air
: Central Air
: Finished, Full
: Mountain(s)
: Cats OK, Dogs OK
: Smoke Detector(s)
: 2
: Dryer, Dishwasher, Microwave, Refrigerator, Washer, Oven
: Contemporary
: Playground, Park, Tennis Court(s), Trail(s)
: Composition
: Public Sewer
Address Map
CO
Denver
Denver
80238
Boston
5779
Street
W105° 7' 8.2''
N39° 48' 3.9''
Additional Information
$56
Monthly
: Wood Siding
East
Isabella Bird Community
2
Venture Prep School
: Pantry, Open Floorplan, Eat-in Kitchen, Vaulted Ceiling(s), Five Piece Bath, Walk-In Closet(s)
Yes
Yes
Cash, Conventional, FHA, VA Loan
: Level
Denver Discovery
eXp Realty, LLC
1103-34-004
: None
: Duplex
Central Park
$6,190
2024
: Cable Available, Electricity Connected, Natural Gas Connected
M-RX-5
01/09/2026
2344
Active
Yes
1
Denver 1
Denver 1
In Unit
Denver 1
04/14/2026
1
01/09/2026
Public
: Two

Central Park

5779 Boston Street, Denver, CO 80238

3 Bedrooms
4 Total Baths
2,344 Square Feet
$708,000
Listing ID #9415591
Basic Details
Property Type : Residential
Listing Type : For Sale
Listing ID : 9415591
Price : $708,000
Bedrooms : 3
Rooms : 11
Total Baths : 4
Full Bathrooms : 3
1/2 Bathrooms : 1
Square Footage : 2,344 Square Feet
Year Built : 2018
Lot Area : 2,475 Acres
Lot Acres : 0.06
Property Sub Type : Single Family Residence
Status : Active
Originating System Name : REcolorado
Mortgage Calculator
$
$ %
years
%
$ %per year
$ %per year

$
Contact Agent