Metro Denver Luxury Homes For Sale

Property Description

Now refreshed with new interior paint and improved pricing, this 5 acre Elkhorn Ranch property offers space, views, and functional flexibility. The property stands out with a rare 40 x 60 detached shop building. The 2,400 square foot shop provides exceptional space for RV storage, boats, trailers, car enthusiasts, contractors, equipment, or hobby workshop use, in addition to the attached three car garage.

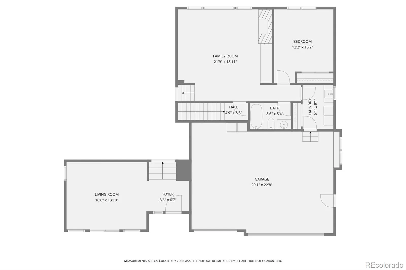
Inside, the kitchen is designed for everyday living and entertaining with a four burner gas cooktop, double ovens, center island with seating, electric blinds, and peaceful views from the kitchen windows. The family room features soaring ceilings, a wall of windows, and a cozy gas fireplace that fills the space with natural light. A main floor bedroom offers flexible use as a guest space or home office.

Upstairs, the spacious primary suite includes a sitting area with views, electric blinds, dual walk in closets, and a remodeled ensuite bath with soaking tub, multi head shower, and updated finishes. The partially finished walkout basement offers a flex room currently used as a gym, plus additional space ready to customize. With high 10 foot ceilings and walkout access, it offers excellent potential for future finished living space, recreation, storage, or a golf simulator setup.

Outdoor living includes a new deck and patio, wide open skies, room to enjoy the land, and a private putting green.

Recent upgrades include new windows and blinds throughout, updated light fixtures, remodeled primary bath, new deck and patio, both air conditioning units replaced in 2021, new roof and exterior paint in 2023, basement furnace replaced in 2023, and a new water heater in 2025.

The home has been pre inspected and a comprehensive HOA summary report is available. Conveniently located with easy access to E470 while still offering the privacy, acreage, and open space that make Elkhorn Ranch so desirable.

Features
: Forced Air, Natural Gas
: Central Air
: Finished, Full, Walk-Out Access
: Meadow, Plains
: Gas Log, Family Room
: Carbon Monoxide Detector(s), Smoke Detector(s)
: Covered, Deck, Front Porch, Patio
: 7
: Cooktop, Dryer, Dishwasher, Disposal, Microwave, Refrigerator, Washer, Gas Water Heater, Double Oven
: Concrete, Oversized, Lighted, Storage, Exterior Access Door, Oversized Door, RV Garage
: Composition
: Septic Tank
Address Map
CO
Elbert
Parker
80138
Westout
2334
Avenue
W105° 22' 43.6''
N39° 32' 26.2''
Additional Information
$416
Annually
: Trash
: Brick, Wood Siding
1
Northwest
: 220 Volts
Pine Lane Prim/Inter
: Private Yard, Rain Gutters, Spa/Hot Tub
1
: Carpet, Wood
7
Chaparral
: High Ceilings, Granite Counters, Smoke Free, Kitchen Island, Eat-in Kitchen, Vaulted Ceiling(s), High Speed Internet, Ceiling Fan(s), Tile Counters, Primary Suite, Five Piece Bath, Smart Window Coverings, Walk-In Closet(s)
Yes
Yes
Cash, Conventional, FHA, Jumbo, VA Loan
: Sprinklers In Front, Landscaped, Open Space, Meadow
Sierra
Mountain States Realty Group
R117005
: None
: House
Elkhorn Ranch
$9,342
2024
: Phone Available, Electricity Connected, Natural Gas Connected, Internet Access (Wired)
: Double Pane Windows, Window Treatments
RA-1
01/08/2026
5015
Active
Yes
1
Douglas RE-1
Slab
Douglas RE-1
Sink
Douglas RE-1
05/20/2026
01/08/2026
Public
: Two

Elkhorn Ranch

2334 Westout Avenue, Parker, CO 80138

5 Bedrooms
3 Total Baths
3,671 Square Feet
$1,099,900
Listing ID #5933786
Basic Details
Property Type : Residential
Listing Type : For Sale
Listing ID : 5933786
Price : $1,099,900
Bedrooms : 5
Rooms : 14
Total Baths : 3
Full Bathrooms : 3
Square Footage : 3,671 Square Feet
Year Built : 2004
Lot Area : 5.04 Acres
Lot Acres : 5.04
Property Sub Type : Single Family Residence
Status : Active
Originating System Name : REcolorado
Mortgage Calculator
$
$ %
years
%
$ %per year
$ %per year

$
Contact Agent