Metro Denver Luxury Homes For Sale

Property Description

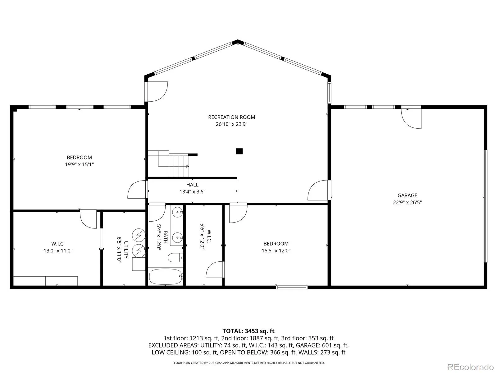
Welcome to Pinecone Corner, a charming 4-bedroom, 3-bath, three-level log home nestled in the trees with stunning mountain views on over 35+ acres. Step into a beautiful entryway filled with natural light from soaring cathedral windows in the living room. The wide-open main level features cozy seating around the fireplace and an eat-in kitchen with a spacious island that opens to the living area, adorned with many pinecone figures collected over the years. Large windows and doors lead to a deck showcasing breathtaking mountain views, while a quaint dining area sits just off the kitchen. The main floor offers two bedrooms and a full bath, plus a primary with ensuite and beautiful walkout deck. Upstairs, enjoy a loft-style sitting room or office with mountain views. The lower level boasts a large open space ideal for a game room with dry bar, walkout to a patio and fenced yard, a fourth bedroom, full bath, and access to the oversized two-car garage. Walk your very own hiking trails that wind through the wooded property. Whether you’re seeking a full-time residence, vacation home, or serene escape, Pinecone Corner offers space, serenity, and unforgettable mountain living.

Features
: Electric
: None
: Finished, Full, Walk-Out Access
: Partial
: Mountain(s)
: Yes
: Family Room
: Covered, Deck, Front Porch, Patio
: 2
: Negotiable
: Dryer, Dishwasher, Microwave, Refrigerator, Self Cleaning Oven, Washer, Oven, Humidifier, Electric Water Heater
: Concrete, Oversized, Finished Garage, Lighted, Dry Walled, Unpaved
: Shingle
: Septic Tank
: Bath
Address Map
CO
Custer
Westcliffe
81252
Pheasant Loop
2613
W106° 28' 5.4''
N38° 14' 21.7''
Additional Information
$41
Monthly
: Snow Removal, Road Maintenance
: Log
From Westcliffe Main St. Head North on Hwy 69. Turn right onto Blue Grouse Cir., right on Wild Turkey rd. left onto Miriam Turkey Rd. Right turn on Pheasant Loop, See Real Estate Sign at the driveway!!
: 110V
Custer County
: Private Yard, Dog Run
1
: Carpet, Tile, Vinyl
2
Custer County
: Pantry, High Ceilings, Granite Counters, Smoke Free, Kitchen Island, Eat-in Kitchen, Vaulted Ceiling(s), Entrance Foyer, Primary Suite, Five Piece Bath, Walk-In Closet(s)
Yes
Yes
Cash, Conventional, FHA, VA Loan
: Many Trees, Rolling Slope, Mountainous
Custer County
HomeSmart Preferred Realty
0010221600
: None
: House
The Woods at Buck Mountain
$3,603
2024
: Cable Available, Phone Available, Electricity Connected, Electricity To Lot Line
: Double Pane Windows, Skylight(s)
12/19/2025
3940
Active
Yes
1
Custer County C-1
Slab
Custer County C-1
Sink
Custer County C-1
03/16/2026
02/19/2026
Well
: Three Or More

The Woods at Buck Mountain

2613 Pheasant Loop, Westcliffe, CO 81252

4 Bedrooms
3 Total Baths
2,428 Square Feet
$1,150,000
Listing ID #6667333
Basic Details
Property Type : Residential
Listing Type : For Sale
Listing ID : 6667333
Price : $1,150,000
Bedrooms : 4
Rooms : 16
Total Baths : 3
Full Bathrooms : 2
3/4 Bathrooms : 1
Square Footage : 2,428 Square Feet
Year Built : 2003
Lot Area : 35.30 Acres
Lot Acres : 35.3
Property Sub Type : Single Family Residence
Status : Active
Originating System Name : REcolorado
Mortgage Calculator
$
$ %
years
%
$ %per year
$ %per year

$
Contact Agent