Metro Denver Luxury Homes For Sale

Property Description

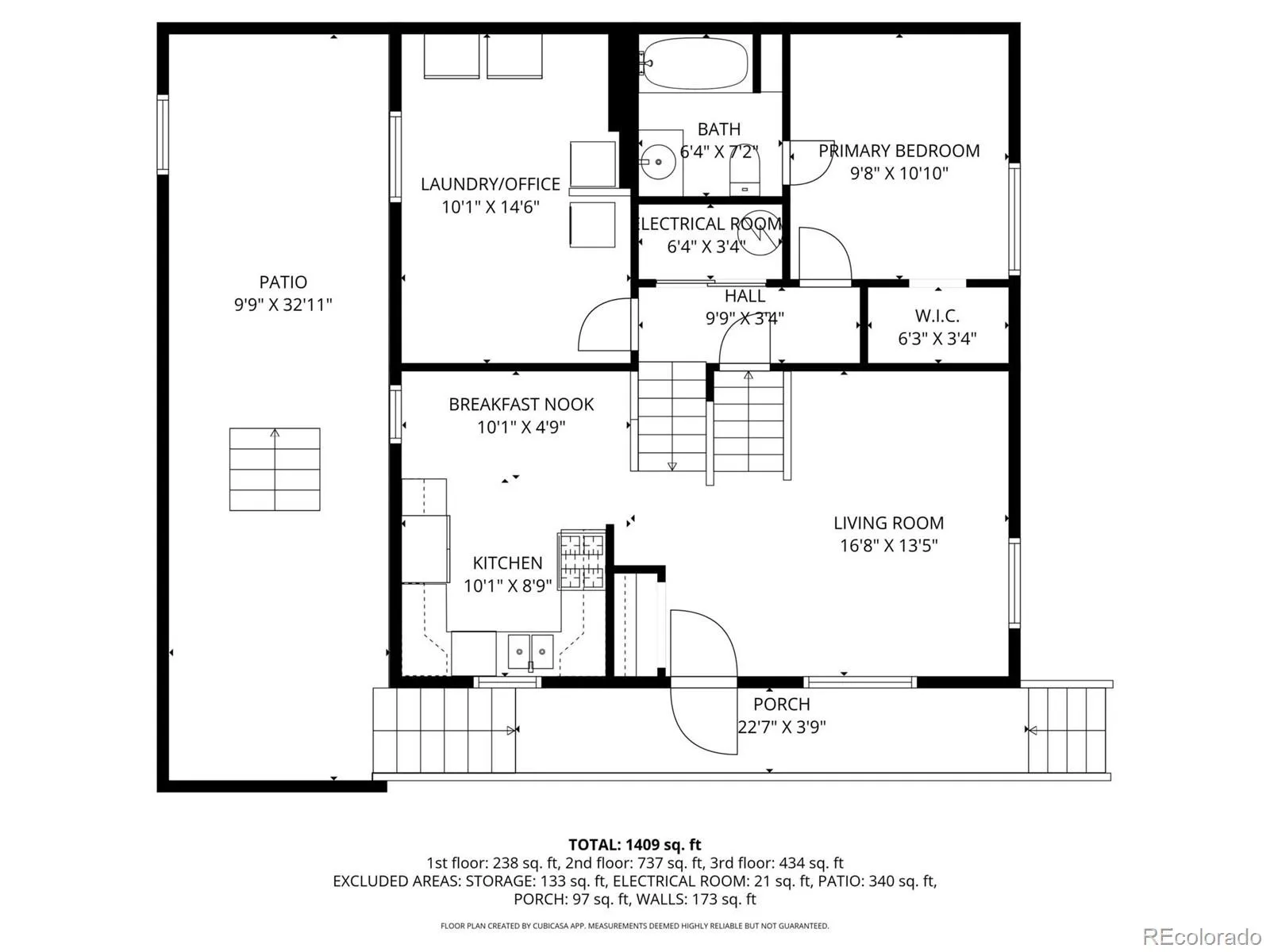
Welcome to Elizabeth, nestled only 15 minutes away on tree-lined roads from Castle Rock and Parker. This home will be your private escape from the hustle and bustle without being too far from modern conveniences. Enjoy the star-filled skies at night and sip coffee on your covered front porch and watch the deer graze. This home boasts 2 options for your primary bedroom, an open main floor for entertaining, and a more private cozy den downstairs for relaxing, a home gym, or family time. Office with built-in shelving has plenty of places for your favorite books and decor. The laundry area was moved from the hall closet to the office entry to allow for a full-size washer and dryer. With a newer furnace (2023) and hot water heater (2024), you can rest at ease, with no pricey upcoming home maintenance costs on the horizon. Outdoor private patio and yard area has planters for a small garden and a large patio to enjoy the summer weather with company. Whether you spend more time inside, curled up with your favorite book, or out and about exploring the beautiful surroundings, you are sure to make sweet memories in this home.

Features
: Forced Air, Natural Gas
: None
: Finished, Partial
: Full
: Yes
: Carbon Monoxide Detector(s), Smoke Detector(s), Radon Detector
: Covered, Front Porch, Patio
: 2
: Dryer, Dishwasher, Disposal, Microwave, Range, Refrigerator, Range Hood, Washer, Gas Water Heater, Oven
: Traditional
: Asphalt
: Composition
: Public Sewer
Address Map
CO
Elbert
Elizabeth
80107
Settlement
275
Lane
W105° 23' 55.3''
N39° 21' 36.1''
Additional Information
$60
Monthly
: Maintenance Grounds, Snow Removal, Trash
: Frame, Wood Siding
94
: 220 Volts, 110V
Running Creek
: Private Yard, Rain Gutters
: Laminate, Tile
Elizabeth
: Open Floorplan, Smoke Free, Eat-in Kitchen, Vaulted Ceiling(s), Ceiling Fan(s), Primary Suite, Jack & Jill Bathroom, Walk-In Closet(s), Wired for Data
Yes
Yes
Cash, Conventional, FHA, VA Loan
: Landscaped, Many Trees
Elizabeth
HomeSmart Realty
R108889
: None
: House
Elizabeth Settlement
$1,995
2024
: Cable Available, Phone Available, Electricity Connected, Natural Gas Connected
: Double Pane Windows
ER-3
11/22/2025
1738
Active
Yes
Live/Work
Elizabeth C-1
Elizabeth C-1
In Unit
Elizabeth C-1
02/24/2026
11/22/2025
A2
Public
: Tri-Level

Elizabeth Settlement

275 Settlement Lane, Elizabeth, CO 80107

3 Bedrooms
2 Total Baths
1,695 Square Feet
$360,000
Listing ID #4952978
Basic Details
Property Type : Residential
Listing Type : For Sale
Listing ID : 4952978
Price : $360,000
Bedrooms : 3
Rooms : 11
Total Baths : 2
Full Bathrooms : 2
Square Footage : 1,695 Square Feet
Year Built : 1984
Lot Area : 4,617 Acres
Lot Acres : 0.11
Property Sub Type : Single Family Residence
Status : Active
Originating System Name : REcolorado
Mortgage Calculator
$
$ %
years
%
$ %per year
$ %per year

$
Contact Agent