Metro Denver Luxury Homes For Sale

Property Description

A rare fusion of luxury, land, and lifestyle—fully remodeled 37-acre gated estate with sweeping 360° mountain views and premier equestrian amenities just minutes from Castle Rock.

Set behind a private gate, this exceptional horse property delivers total privacy without sacrificing convenience. This walk-out ranch showcases a stunning open design with vaulted ceilings, decorative beams, a statement chandelier, and rich 7” hickory floors. A dramatic floor-to-ceiling wood fireplace anchors the living space and is beautifully echoed on the exterior. Walls of new windows and sliding glass doors flood the home with natural light, while a full wraparound deck captures breathtaking views in every direction.

The gourmet kitchen is both stylish and functional, featuring slab soapstone countertops, a large entertainment island, new appliances, charcoal stone backsplash, and a walk-through pantry/coffee bar.

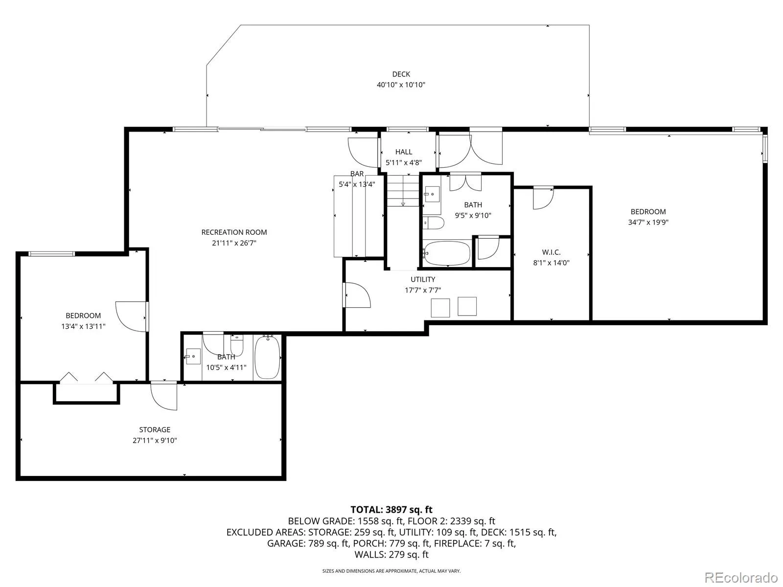
The main-level primary suite is a true retreat with vaulted ceilings and double glass doors opening to the expansive deck on three sides. The spa-inspired bath is unforgettable—dual toilet rooms, slab tile floors and walls, glass-enclosed shower, deep soaking tub, and an oversized custom walk-in closet with built-ins and chandelier.

The walk-out basement is equally impressive with 2 bedrooms, 2 full baths, a large game room, wet bar, and direct access to a brand-new lower deck. One bedroom is ideally suited as a second primary suite.

Equestrian facilities are second to none, including a 7,200 sq ft indoor arena with 4 stalls, tack room, hay storage, two 10’ drive-through doors, electric, water, insulation, and plumbing for a heater. The property also features 3 pastures, corral, and a livestock water permit.

Additional highlights include a well permit allowing up to 2 more homes, plus recent upgrades: new roof, exterior paint, security gate/system, and driveway.

An unmatched opportunity to own a turnkey luxury ranch with land, views, and versatility.

Features
: Forced Air, Propane, Wood
: Central Air
: Finished, Full, Exterior Entry, Walk-Out Access
: Partial, Fenced Pasture
: Mountain(s), Valley, Meadow
: Yes, Cats OK, Dogs OK
: Great Room, Wood Burning
: Security System, Carbon Monoxide Detector(s), Smoke Detector(s)
: Covered, Deck, Front Porch, Patio, Wrap Around
: 11
: Dryer, Dishwasher, Microwave, Range, Refrigerator, Range Hood, Washer, Gas Water Heater, Oven, Water Purifier
: Oversized, Finished Garage, Asphalt, Insulated Garage, Circular Driveway, Dry Walled, Oversized Door
: Composition
: Septic Tank
: Bath
Address Map
CO
Douglas
Sedalia
80135
State Highway 67
3794
W106° 59' 53.1''
N39° 23' 50.1''
N
Additional Information
: Frame, Wood Siding, Stone
Santa Fe/US 85 & 67, East on 67 for about 4 miles. Property is on the left.
Sedalia
: Private Yard
1
: Laminate, Tile
3
Castle View
Yes
: High Ceilings, Open Floorplan, Smoke Free, Kitchen Island, Eat-in Kitchen, Solid Surface Counters, Vaulted Ceiling(s), Built-in Features, Stone Counters, Five Piece Bath, No Stairs, Walk-In Closet(s)
Yes
Yes
Cash, Conventional, USDA Loan, VA Loan
: Landscaped, Secluded, Open Space, Suitable For Grazing, Rolling Slope, Meadow, Mountainous
Castle Rock
RE/MAX Professionals
R0390436
: None
: House
Metes & Bounds
$5,318
2025
: Electricity Connected, Propane
: Double Pane Windows, Window Coverings
A1
11/04/2025
4489
Active
1
Douglas RE-1
Slab
Douglas RE-1
Sink
Douglas RE-1
03/27/2026
11/05/2025
Well
: One

Metes & Bounds

3794 N State Highway 67, Sedalia, CO 80135

4 Bedrooms
4 Total Baths
4,364 Square Feet
$3,689,000
Listing ID #2532982
Basic Details
Property Type : Residential
Listing Type : For Sale
Listing ID : 2532982
Price : $3,689,000
Bedrooms : 4
Rooms : 12
Total Baths : 4
Full Bathrooms : 4
Square Footage : 4,364 Square Feet
Year Built : 1999
Lot Area : 36.76 Acres
Lot Acres : 36.76
Property Sub Type : Single Family Residence
Status : Active
Originating System Name : REcolorado
Mortgage Calculator
$
$ %
years
%
$ %per year
$ %per year

$
Contact Agent