Metro Denver Luxury Homes For Sale

Property Description

A Must-see For Any Mid-Mod Enthusiast!
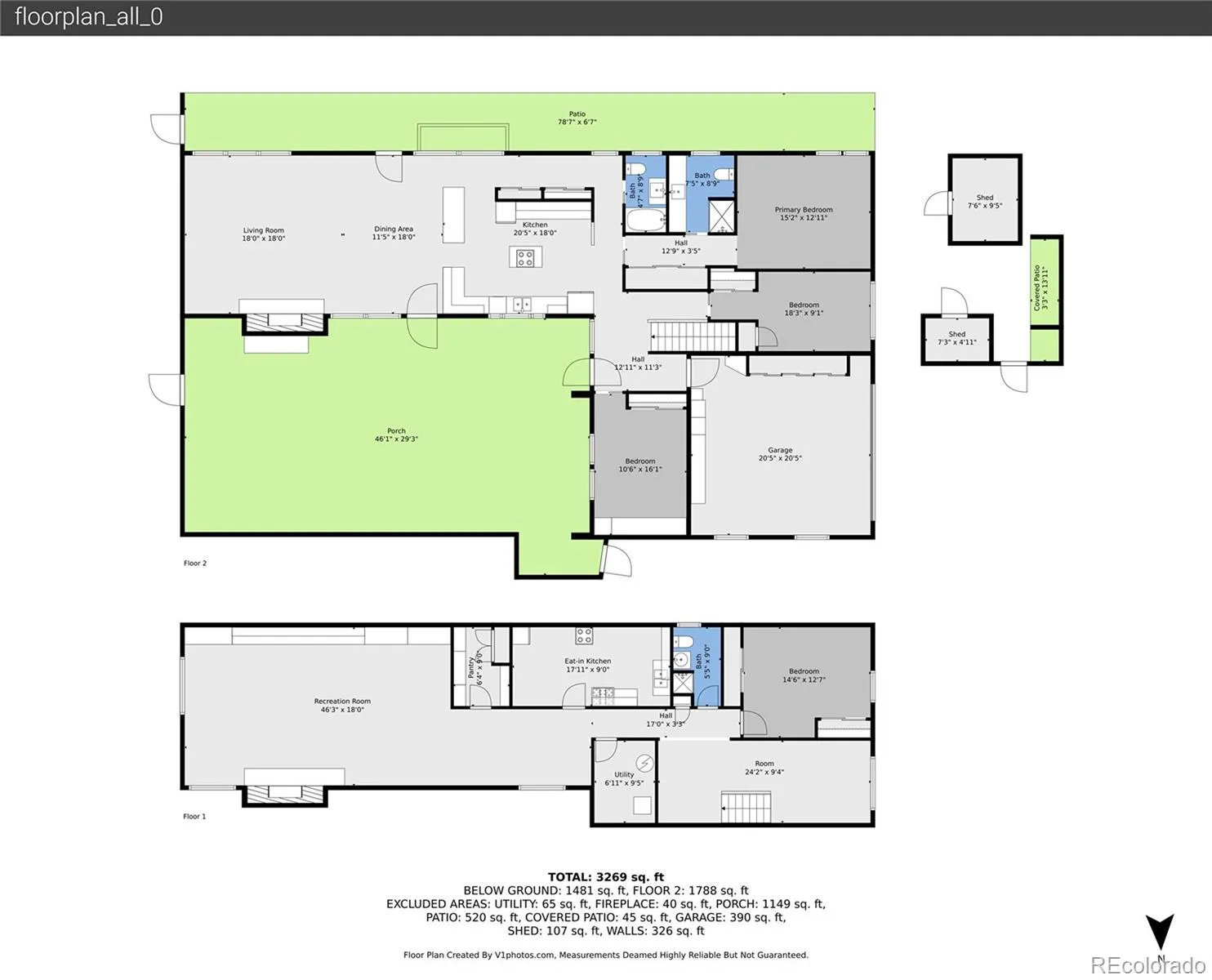
Experience a rare architectural gem — a mid-century modern masterpiece in Denver’s University Hills Neighborhood. This is a custom-built mid-mod home from 1956, created by a distinguished interior designer whose work spanned New York, Washington DC, and Denver. This 3,600+ sq ft residence rests on a 9,370 sq ft lot near Wellshire Golf Course, blending timeless design with exceptional craftsmanship.
Inside, discover 4 bedrooms and 3 baths, including a main-floor primary suite that offers convenience and privacy. The open great room showcases vaulted, beamed knotty-pine ceilings, inlaid flagstone floors, and gallery walls bathed in light from seven stained-glass windows and four bottle-glass panels. A dramatic floating red-stone staircase and two handcrafted fireplaces define the home’s unique mid-mod and art-deco artistry and warmth.
The main kitchen is an entertainer’s showpiece, featuring solid birch cabinetry crafted from a single tree, mirrored cabinet fronts, a copper-hooded cooking island, stainless-steel counters, and hand-poured resin dividers with botanical inlays — each element reflecting bespoke mid-century design.
The lower level includes a vintage summer kitchen, a spacious recreation room with a hand-painted floor by a Norwegian artist, a flexible studio/guest room, and a ¾ bath — perfect for multi-generational living or creative use.
Outdoors, bonsai-style junipers and mature landscaping create a sculpted, low-maintenance retreat that mirrors the home’s architectural precision. Additional highlights include double-pane casement windows, solid walnut exterior doors, two-car garage with cedar storage, and hot-water heating with industrial pump.
As one of the earliest homes in University Hills, this residence stands as a true Denver mid-century architectural treasure.

Features
: Hot Water
: Central Air
: Finished
: Partial
: Great Room, Family Room
: Security Entrance
: Patio
: 2
: Negotiable
: Cooktop, Dishwasher, Disposal, Range, Refrigerator, Range Hood, Oven
: Mid-Century Modern
: Tar/Gravel
: Public Sewer
Address Map
CO
Denver
Denver
80222
Hampden
4677
Avenue
W105° 4' 1.1''
N39° 39' 11.7''
E
Additional Information
: Brick, Wood Siding
1
South
Bradley
: Private Yard, Garden
: Carpet, Laminate, Tile, Wood, Concrete
2
Thomas Jefferson
: High Ceilings, Open Floorplan, Kitchen Island, Vaulted Ceiling(s), Built-in Features, Primary Suite, Stainless Counters, In-Law Floorplan
Yes
Yes
1031 Exchange, Cash, Conventional, FHA, VA Loan
: Level
Hamilton
Keller Williams Advantage Realty LLC
6313-30-017
: None
: House
University Hills
$3,817
2024
: Double Pane Windows
E-SU-DX
10/02/2025
3680
Active
1
Denver 1
Concrete Perimeter
Denver 1
Denver 1
05/23/2026
10/02/2025
Public
: One

University Hills

4677 E Hampden Avenue, Denver, CO 80222

4 Bedrooms
3 Total Baths
3,504 Square Feet
$900,000
Listing ID #8468694
Basic Details
Property Type : Residential
Listing Type : For Sale
Listing ID : 8468694
Price : $900,000
Bedrooms : 4
Rooms : 12
Total Baths : 3
Full Bathrooms : 1
3/4 Bathrooms : 2
Square Footage : 3,504 Square Feet
Year Built : 1956
Lot Area : 9,370 Acres
Lot Acres : 0.22
Property Sub Type : Single Family Residence
Status : Active
Originating System Name : REcolorado
Mortgage Calculator
$
$ %
years
%
$ %per year
$ %per year

$
Contact Agent